Discussion starter 1 apr 2 2017. Find your vectra b wiring diagrams here for vectra b wiring diagrams and you can print out.
Vauxhall Vectra B Wiring Diagram Wiring Diagram
Vectra b wiring diagram. Welcome to winnebago industries wiring diagrams. It now lies with you to drive your vehicle safely and ensure that it performs perfectly. For opelvauxhall vectra b 1995 1996 1997 1998 1999 2000 2001 2002 model year. Vauxhall vectra b fuse box. Wiring diagram vectra b crankshaft sensor wiring diagram vauxhall vectra question. Learn how we and our ad partner google collect and use data.
Your vectra is an intelligent combination of forward looking technology impressive safety environmental friendliness and economy. Wiring diagrams vectra b 95 02 jump to latest follow 1 2 of 2 posts. Our partners will collect data and use cookies for ad personalization and measurement. Fuse box in engine compartment. This owners manual provides. Search for vectra b wiring diagrams here and subscribe to this site vectra b wiring diagrams read more.
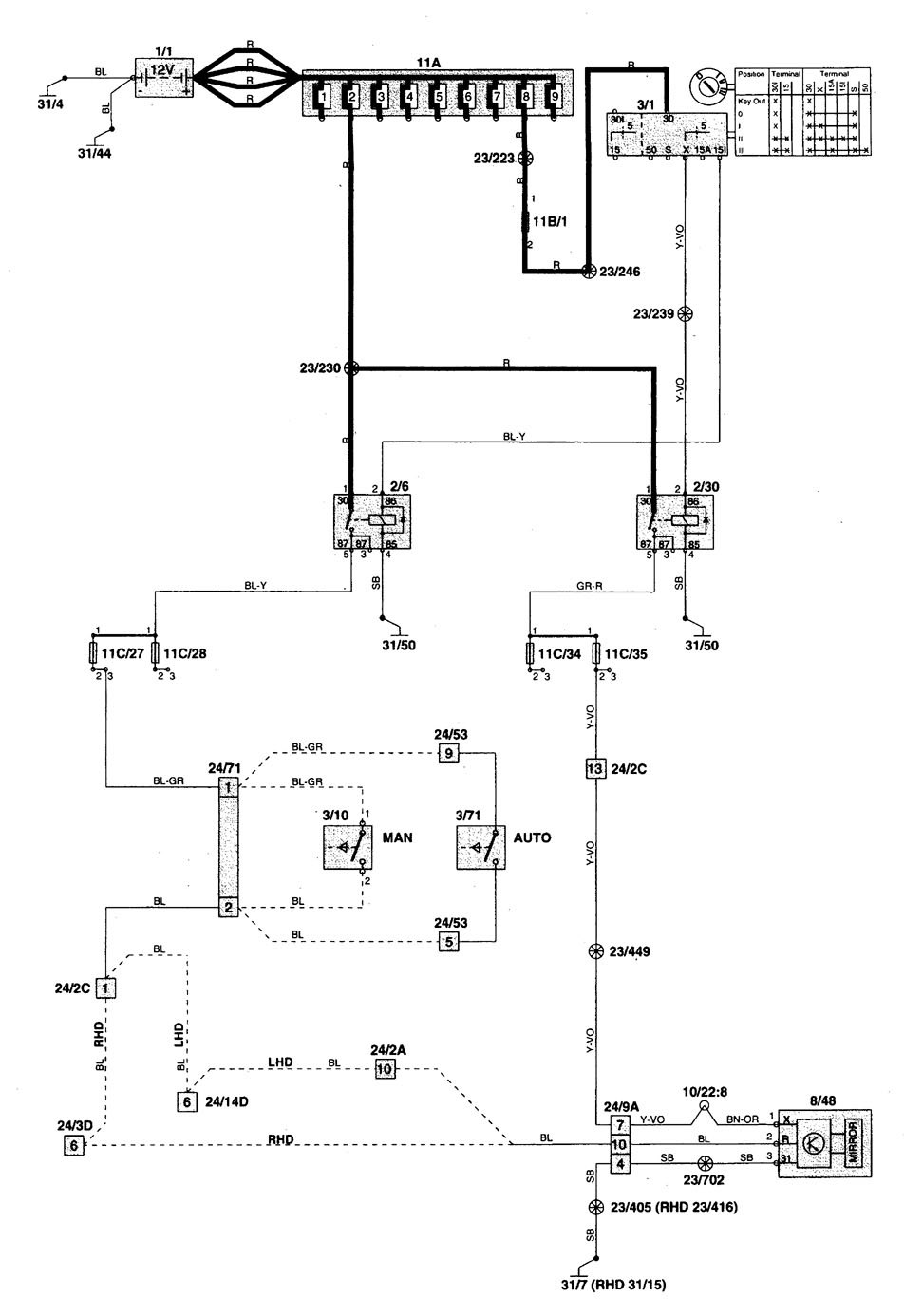
T h g i e w b r e k c e loading. Wiring diagram instructions within opel zafira fuse box diagram by admin through the thousands of photographs on line concerning opel zafira fuse box diagram choices the best choices having ideal resolution only for you and this pictures is considered one of photographs libraries in our ideal pictures gallery about opel zafira fuse box diagram. Introduced with vectra b model year 1996 basic principles block circuit diagram description of function control dimmer acoustic warnings interior light delay windscreen wipers heated rear window and mirror fog lights and rear light control astra g. Please choose a year from the menu at left to start your search. Joined apr 2 2017 1 posts.














