For specials or if you cant find what you want please contact rotork. Close we use cookies in order to optimise this website and for continuous improvement.
Rotork Iq Wiring Diagram Wiring Diagram
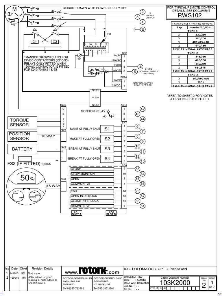
Rotork wiring diagram. The wiring diagram selector returns standard iq3iqt3 range wiring diagrams only. It shows the components of the circuit as simplified shapes and the capacity and signal contacts along with the devices. The wiring diagram selector returns standard ck atronik controls wiring diagrams only. Type a multi turn electric actuator with atronik with mechanical switch mech msm main power supply 0 ac. 3 5 6 7 4 8. Type duty 1 iq standard 2 iq modulating 3 iqt standard 4 iqtm modulating.
For specials or if you cant find what you want please contact rotork. Rotork valve actuator wiring diagram wiring diagram is a simplified customary pictorial representation of an electrical circuit. Please select a language andor file type from the list below. Rotork document search area search for and download documents wiring diagrams and product drawings. Iq mk3 part turn iqt basic diagram. By using this site you agree to the usage of cookies.
For further information please refer to our privacy policyprivacy policy. Rotork wiring diagram selector. Rotork ytc limited 81 hwanggeum ro 89 beon gil gimpo si gyeonggi do korea 10048. Iq mk3 multi turn iq basic diagram. By using this site you agree to the usage of cookies. The wiring diagram selector returns standard iqt2 pro legacy wiring diagrams only.
For specials or if you cant find what you want please contact rotork. Close we use cookies in order to optimise this website and for continuous improvement. For further information please refer to our privacy policyprivacy policy.
















